028-85180126
客服微信
首页
案例欣赏
>>
商业空间
办公空间
娱乐空间
生产空间
餐饮空间
合作伙伴
空间智能化
>>
办公智能系统
KTV场景控制
智慧门店系统
酒店集成系统
项目执行
>>
质量与成本
工期与效率
文明施工
安全生产
行业快讯
>>
内部新闻
行业新闻
关于我们
在线留言
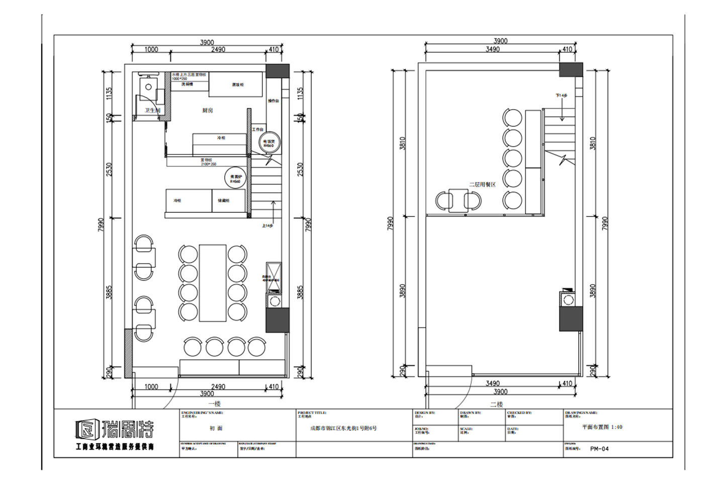
初面
项目名称:初面面馆
项目地址:武侯区
Recommended articles
案例推荐
健和传统中医
建讯世纪教育科技
莫名堂
炫影全息